大阪府大阪市天王寺区生玉町 /1LDK /41.25m2 /9階部分 /東向き /
| 賃料(共益費) | 137,000円 (10,000円) |
|---|
| 間取り(面積) | 1LDK ( 41.25 m2) |
|---|
※入居可能時期についてはリフォーム状況によって変更が生じる場合がございます。予めご了承下さい。
【ペット飼育時の注意】※2026年3月8日申込分より適用
・小型犬、猫いずれか2匹まで
・小型犬、猫飼育の場合は1頭あたり共益費3,000円増額
・ペット飼育時に1頭あたり礼金30,000円(非課税)増額
・成獣の状態で体長60cm以下(鼻先より尾のつけ根まで)
・事前に種類の確認、契約時に「ペット飼育に関する細則」「ペット飼育誓約書」、写真や予防接種を受けた証明書等の提出が必須
・その他の小動物(檻やケージ、水槽等で飼うことを想定する小動物)については担当までご相談くださいませ。
◆解約予告1ヶ月前(月割り計算)
◆高温差し湯機能(A1・A2・C・Crタイプのみ)
◆3口コンログリル付(A1・A2・C・Crタイプのみ)
◆2口コンログリル無(B1・B2タイプ)
◆エアコン3基(A1・A2タイプ)、2基(B1・B2・C・Crタイプ)
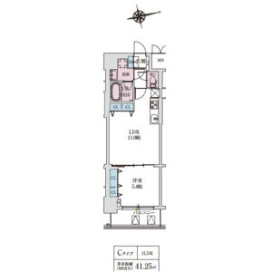
Room Plan
| 間取タイプ | 1LDK | ||
|---|---|---|---|
| 間取詳細 | 11×5.4 | ||
| 専有面積 | 41.25m2 | ||
| 方 位 | 東向き | ||
| 所在階 | 9階部分 | ||
| 賃 料 | 137,000円 | ||
| 管理費 | 10,000円 | ||
| 敷 金 | なし | ||
| 礼 金 | なし | ||
| 状 態 |
空室
[商談中] 入居時期:即入 |
||
| 物件種別 | [住居用] マンション |
|---|---|
| 所在地 | 大阪府大阪市天王寺区生玉町 |
| 交通 |
「スプランディッド上本町WESTⅡ」より 大阪市高速軌道谷町線「谷町九丁目」徒歩2分 大阪市高速軌道千日前線「谷町九丁目」徒歩2分 近鉄奈良線「大阪上本町」徒歩8分 |
| 構造 | 鉄筋コンクリート造 地上15階 |
| 築年 | 2025年12月築 |
| 駐車場 | バイク2 原付屋根有り4 原付屋 根無2 |
○ ペット相談(小型犬、猫可) ○ 2人入居可能 ○ 子供可 ○ 保証会社利用必須
○ 給湯器(ガス) ○ ガスコンロ(3口以上) ○ システムキッチン
○ 風呂(ユニットバス) ○ トイレ(水洗) ○ 洗面台(独立) ○ 浴室乾燥機 ○ 暖房便座 ○ シャワートイレ ○ 洗髪洗面化粧台 ○ バス・トイレ別 ○ 洗濯機置場(室内)
○ エアコン(冷暖房)
○ シューズボックス
○ BS ○ CS ○ インターネット対応 ○ ネット使用料不要 ○ Wi-Fi
○ オートロック ○ 宅配BOX ○ 防犯カメラ ○ インターホン
○ 専用ごみ置場 ○ エレベーター(2基) ○ オートバイ駐輪場 ○ 自転車置場 ○ 電気 ○ ガス(都市ガス) ○ 水道(公営) ○ 排水(公共下水) ○ バルコニー/ベランダ ○ 網戸 ○ フローリング
| 物件種別 | [住居用] マンション |
|---|---|
| 物件名 | スプランディッド上本町WESTⅡ |
| 号室名 | 903 |
| 所在地 | 大阪府大阪市天王寺区生玉町9-2 |
| 交通 |
大阪市高速軌道谷町線「谷町九丁目」徒歩2分 大阪市高速軌道千日前線「谷町九丁目」徒歩2分 近鉄奈良線「大阪上本町」徒歩8分 |
| 構造 | 鉄筋コンクリート造地上15階 |
| 築年月 | 2025年12月 |
| 駐車場 | バイク2 原付屋根有り4 原付屋 根無2 |
| 町会費 | |
| 所在階 | 9階部分 |
| 方位 | 東向き   |
| 間取り |
1LDK 11×5.4 |
| 専有面積 | 41.25 m2 |
| 状態 | 空室[商談中] |
| 賃料 | 137,000円 |
| 共益費 | 10,000円 |
| 敷金 | なし |
| 礼金 | なし |
| 他諸経費 |
保険:保険要加入 火災保険 2年契約 20,000円(住まいのかけつけサービスセットプラン) ※ 特記されているものだけを表示していますので、詳しくはお問い合わせの際にご確認ください。 |
| その他 |
法人契約可 普通借家 普通借家 |
| オススメ |
○ ※入居可能時期についてはリフォーム状況によって変更が生じる場合がございます。予めご了承下さい。 【ペット飼育時の注意】※2026年3月8日申込分より適用 ・小型犬、猫いずれか2匹まで ・小型犬、猫飼育の場合は1頭あたり共益費3,000円増額 ・ペット飼育時に1頭あたり礼金30,000円(非課税)増額 ・成獣の状態で体長60cm以下(鼻先より尾のつけ根まで) ・事前に種類の確認、契約時に「ペット飼育に関する細則」「ペット飼育誓約書」、写真や予防接種を受けた証明書等の提出が必須 ・その他の小動物(檻やケージ、水槽等で飼うことを想定する小動物)については担当までご相談くださいませ。 ◆解約予告1ヶ月前(月割り計算) ◆高温差し湯機能(A1・A2・C・Crタイプのみ) ◆3口コンログリル付(A1・A2・C・Crタイプのみ) ◆2口コンログリル無(B1・B2タイプ) ◆エアコン3基(A1・A2タイプ)、2基(B1・B2・C・Crタイプ) |
| 設備・条件 | ○ ペット相談(小型犬、猫可) ○ 2人入居可能 ○ 子供可 ○ 保証会社利用必須 ○ 給湯器(ガス) ○ ガスコンロ(3口以上) ○ システムキッチン ○ 風呂(ユニットバス) ○ トイレ(水洗) ○ 洗面台(独立) ○ 浴室乾燥機 ○ 暖房便座 ○ シャワートイレ ○ 洗髪洗面化粧台 ○ バス・トイレ別 ○ 洗濯機置場(室内) ○ エアコン(冷暖房) ○ シューズボックス ○ BS ○ CS ○ インターネット対応 ○ ネット使用料不要 ○ Wi-Fi ○ オートロック ○ 宅配BOX ○ 防犯カメラ ○ インターホン ○ 専用ごみ置場 ○ エレベーター(2基) ○ オートバイ駐輪場 ○ 自転車置場 ○ 電気 ○ ガス(都市ガス) ○ 水道(公営) ○ 排水(公共下水) ○ バルコニー/ベランダ ○ 網戸 ○ フローリング |
| 情報更新日 | 2026-03-21 19:02:13 |
| 次回更新予定日 | 2026-03-31 |
| 所属団体 |
宅建免許番号:大阪府知事免許(1)第63764号 公益社団法人不動産保証協会 大阪府本部 |
| お問合せ |
お問い合わせの際に 「スプランディッド上本町WESTⅡ 903」 とお伝えいただくとスムーズです。
みつけや本舗
大阪市淀川区十三本町1丁目12-15 ドルチェヴィータⅠ 3階
0120-027-464
|

| 間取り | / 1LDK 11×5.4 | ||
|---|---|---|---|
| 完成年月 | / 2025年12月 | ||
| 構造 | / 鉄筋コンクリート造地上15階 | ||
| 入居可能日 | / 空室[商談中] | ||
| 総戸数 | / | ||
| 契約形態 | / | ||
| 駐車場 | / バイク2 原付屋根有り4 原付屋 根無2 | ||
| 売却(敷引) | / | ||
| 割引サービス | / | ||
| 設備 | / ○ ペット相談(小型犬、猫可) ○ 2人入居可能 ○ 子供可 ○ 保証会社利用必須 ○ 給湯器(ガス) ○ ガスコンロ(3口以上) ○ システムキッチン ○ 風呂(ユニットバス) ○ トイレ(水洗) ○ 洗面台(独立) ○ 浴室乾燥機 ○ 暖房便座 ○ シャワートイレ ○ 洗髪洗面化粧台 ○ バス・トイレ別 ○ 洗濯機置場(室内) ○ エアコン(冷暖房) ○ シューズボックス ○ BS ○ CS ○ インターネット対応 ○ ネット使用料不要 ○ Wi-Fi ○ オートロック ○ 宅配BOX ○ 防犯カメラ ○ インターホン ○ 専用ごみ置場 ○ エレベーター(2基) ○ オートバイ駐輪場 ○ 自転車置場 ...その他 | ||
| 備考 | / ○ 法人契約可 ○ 普通借家 | ||
スプランディッド上本町WESTⅡ 903
物件所在地:大阪府大阪市天王寺区生玉町
大阪市高速軌道谷町線「谷町九丁目」徒歩2分
大阪市高速軌道千日前線「谷町九丁目」徒歩2分
近鉄奈良線「大阪上本町」徒歩8分
137,000円
| ■管理費 | 10,000円 |
|---|---|
| ■敷金 | なし |
| ■礼金 | なし |
|
<その他費用>
保険:保険要加入 火災保険 2年契約 20,000円(住まいのかけつけサービスセットプラン) |
|